W Adkins Hill Rd, Norman, OK 73072 - Parcel ID: 4400040240
Industrial
$350,000















Copy PDF link
| Details | ||
|---|---|---|
| Sale Price | $350,000 | |
| Price Per SF | $2.51 SF | |
| Size | 3.2 Acres | |
| Zoning | I-1 | |
| Parcel ID | 4400040240 | |
| Description | ||
|---|---|---|
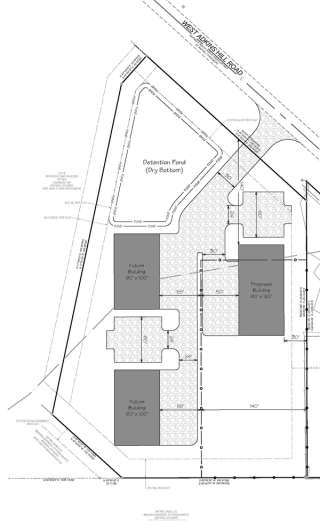
| Located just 1 mile from I-35 and 1.5 miles from Riverwind Casino, this 3.2-acre industrial-zoned tract on Adkins Hill Road sits within the City of Goldsby and carries a Norman address. The property is positioned in a growing industrial corridor with strong traffic exposure, including 63,000+ VPD on I-35 and 24,000 VPD on Highway 9. A conceptual site plan shows three buildings totaling approximately 19,200 SF, offering flexibility for industrial, flex, or service-based development. City water is available, and the City of Goldsby is actively working toward extending sewer service to the area. ***Seller financing available.*** | ||
Disclaimer
A real estate broker is not authorized to give legal or tax advice. No representation is made by Johnson Commercial Group or Brick & Beam Realty, its agents or employees, as to the legal effect or tax consequences of the information contained herein or any transaction relating thereto. Although all information furnished regarding property sales or financing options are from sources deemed to be reliable, such information has not been verified and no express representation is made on, or is in any way implied as to the accuracy thereof and is subject to errors, omissions, change of price, or other conditions prior to sale or withdrawal without notice.
