824 SE 29th Street, OKC. OK 73129
Industrial, Office, Retail, Flex
$7.50 + Utility Lease Type: Modified Gross


















Copy PDF link
| Details | ||
|---|---|---|
| Building Size | 4,769 SF +/- | |
| Lease Rate | $7.50 + Utility Lease Type: Modified Gross | |
| Zoning | I-2 | |
| Year Built | 1952 | |
| Available SF | 4,769 SF +/- | |
| *Owner/Broker | ||
| Description | ||
|---|---|---|
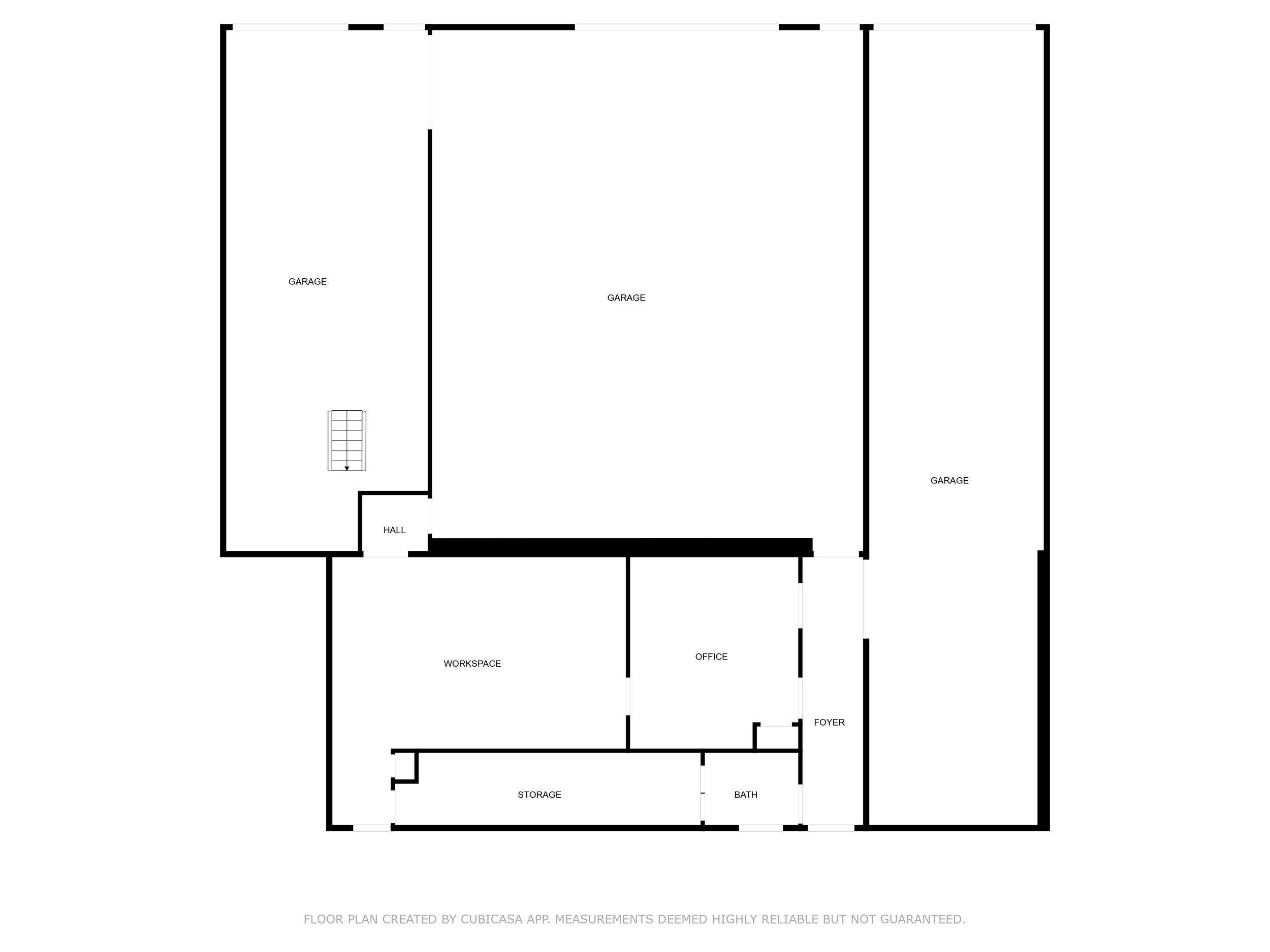
| For Lease: This versatile lease space offers a functional layout with three distinct warehouse areas, ideal for a variety of industrial or storage needs. The main warehouse measures 40’ x 45’, complemented by an east warehouse (69’ x 15’) and a west warehouse (18’ x 45’) with a dock door. Featuring a 16’ clear height, the space is equipped with a 20’ x 10’ overhead door with an operator, along with two additional 10’ x 10’ overhead doors for convenient access. The office and storage areas benefit from central heat and air, while the warehouse is heated with a unit heater. Additional amenities include one restroom, an office, multiple storage rooms, and an alarm system for added security. For added convenience, fenced and gated storage lots are also available for lease at an additional fee. Contact us today for more details! Owner/Broker | ||
Disclaimer
A real estate broker is not authorized to give legal or tax advice. No representation is made by Johnson Commercial Group or Brick & Beam Realty, its agents or employees, as to the legal effect or tax consequences of the information contained herein or any transaction relating thereto. Although all information furnished regarding property sales or financing options are from sources deemed to be reliable, such information has not been verified and no express representation is made on, or is in any way implied as to the accuracy thereof and is subject to errors, omissions, change of price, or other conditions prior to sale or withdrawal without notice.
