820 SE 29th Street, Oklahoma City, OK 73129
Industrial
$6/SF/YR+UTL
































Copy PDF link
| Details | ||
|---|---|---|
| Lease Rate | $6/SF/YR+UTL | |
| Lease Type | MG | |
| Zoning | I-2 | |
| Size | 10,550 SF +/- | |
| Year Built | 1952 | |
| Owner/Broker | ||
| Description | ||
|---|---|---|
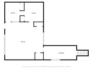
| This versatile industrial property spans from SE 29th to SE 30th Street and offers approximately 10,550 SF of functional space. The layout includes two offices, a foyer, and a storage area, complemented by a primarily open warehouse with clear heights ranging from 15’ to 19.5’. The warehouse features two restrooms, a shower, two dock-high 10’x8’ overhead doors, and one oversized 20’x14’ drive-in door, providing flexible loading options for a variety of users. The facility also includes two single-stall restrooms, a fenced and gated back lot measuring 55’x60’ adds additional secured outdoor space. This property is ideal for businesses requiring a blend of office and warehouse functionality in a highly accessible location. Located ½ Mile East of I-35 and SE 29th Street. | ||
Disclaimer
A real estate broker is not authorized to give legal or tax advice. No representation is made by Johnson Commercial Group or Brick & Beam Realty, its agents or employees, as to the legal effect or tax consequences of the information contained herein or any transaction relating thereto. Although all information furnished regarding property sales or financing options are from sources deemed to be reliable, such information has not been verified and no express representation is made on, or is in any way implied as to the accuracy thereof and is subject to errors, omissions, change of price, or other conditions prior to sale or withdrawal without notice.
