4701 W Main St, Ste 121/125, Norman, OK 73072
Industrial, Medical, Office, Retail, Flex
































Copy PDF link
| Details | ||
|---|---|---|
| Size | 2,400 SF | |
| Lease Rate | $16.50 SF/YR | |
| NNN Rate | $2.50 SF/YR | |
| Year Built | 2025 | |
| Zoning | C-2 | |
| Description | ||
|---|---|---|
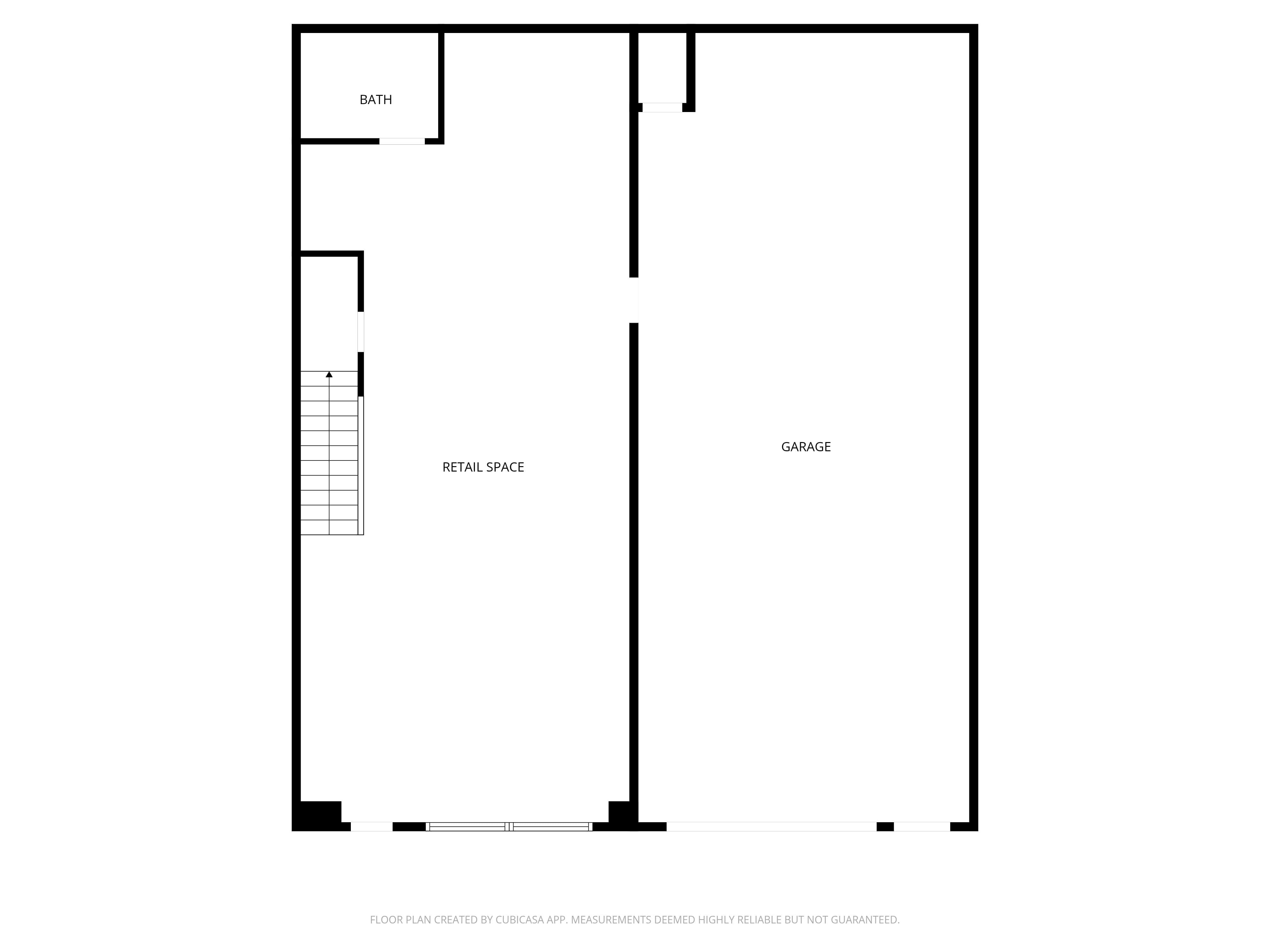
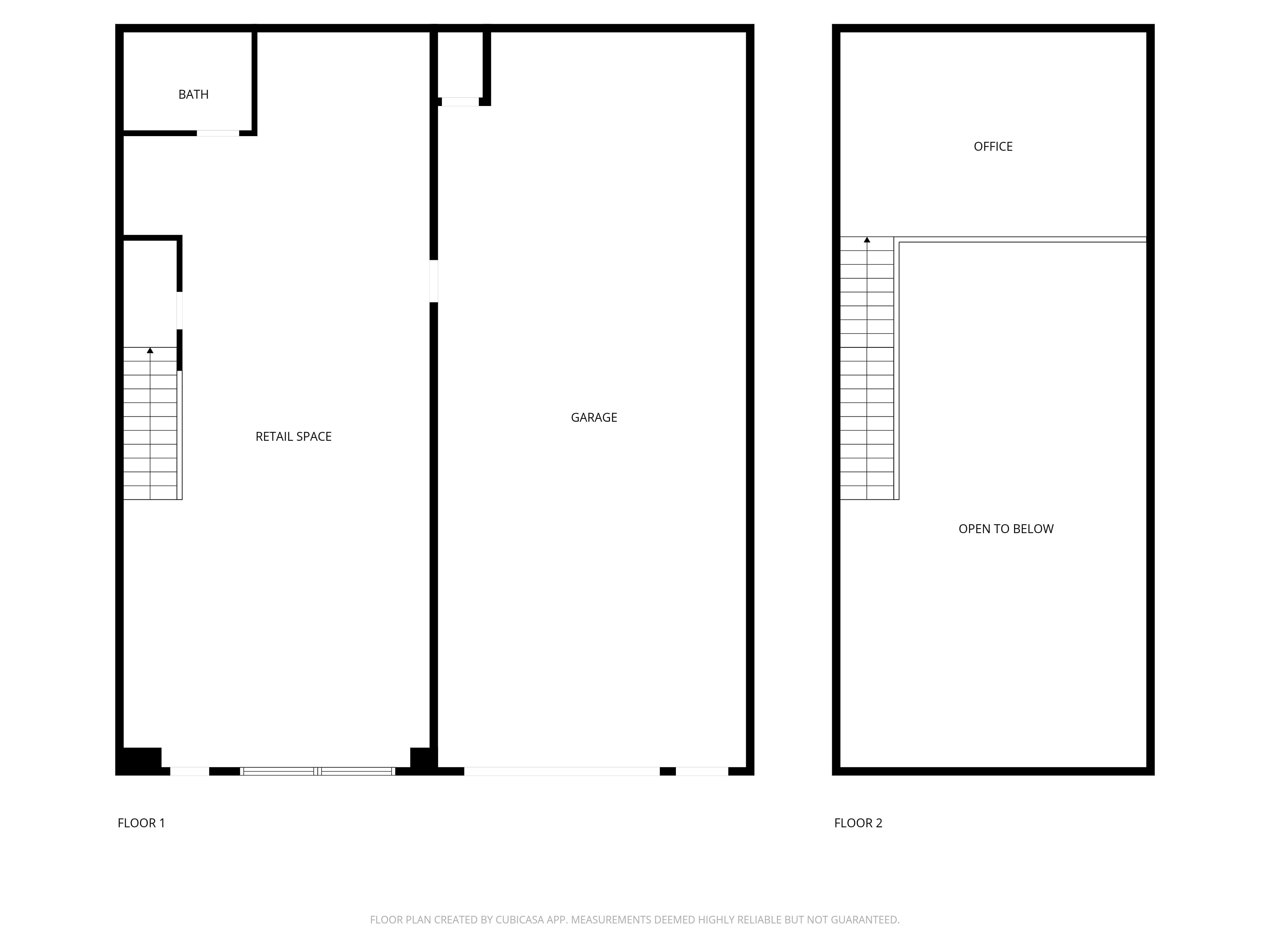
| Located within the newly constructed Studio Row development, Suite 125 offers 2,400 SF of modern office/warehouse space featuring high-end finishes and a flexible, functional layout. The space includes approximately 1,000 SF of open office area with a private restroom and kitchenette, a 400 SF loft, and 1,000 SF of warehouse space equipped with LED lighting, a 12’x14’ overhead door, and heat. The office portion is fully climate-controlled for year-round comfort, making this suite ideal for a wide range of professional office, retail, or light industrial users. Conveniently positioned less than two miles from I-35 and three miles from Highway 9, Studio Row provides exceptional visibility and accessibility along one of Norman’s busiest corridors. | ||
Disclaimer
A real estate broker is not authorized to give legal or tax advice. No representation is made by Johnson Commercial Group or Brick & Beam Realty, its agents or employees, as to the legal effect or tax consequences of the information contained herein or any transaction relating thereto. Although all information furnished regarding property sales or financing options are from sources deemed to be reliable, such information has not been verified and no express representation is made on, or is in any way implied as to the accuracy thereof and is subject to errors, omissions, change of price, or other conditions prior to sale or withdrawal without notice.
