3152 Broce Dr, Norman, OK 73072
Industrial

































Copy PDF link
| Details | ||
|---|---|---|
| Price Per SF | $11.00 | |
| Size | 6,272 SF | |
| Lot Size | 0.73 Acres | |
| Clear Height | 13'6' | |
| Year Built | 1982 | |
| Zoning | I-1 | |
| Description | ||
|---|---|---|
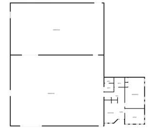
| Located in the Broce Industrial Park at 3152 Broce Dr, Norman, this concrete tilt-up building offers a versatile industrial layout ideal for a wide range of users. The office area includes two private offices, a welcoming foyer, a kitchenette, and one restroom. The warehouse features skylights, a 12' x 12' overhead door, 13'6" clear height, two exhaust fans, two unit heaters, and an additional restroom, providing efficient space for production, storage, or distribution. The fully fenced and gated yard enhances security, while easy access to I-35 ensures convenient daily operations. Equipped with 3-phase power, this property presents a strong opportunity within a well-established Norman industrial corridor. ***Available 1/1/2026!*** | ||
Disclaimer
A real estate broker is not authorized to give legal or tax advice. No representation is made by Johnson Commercial Group or Brick & Beam Realty, its agents or employees, as to the legal effect or tax consequences of the information contained herein or any transaction relating thereto. Although all information furnished regarding property sales or financing options are from sources deemed to be reliable, such information has not been verified and no express representation is made on, or is in any way implied as to the accuracy thereof and is subject to errors, omissions, change of price, or other conditions prior to sale or withdrawal without notice.
