2303 SW 59TH St, Oklahoma City, OK 73119
$15.00 SF/YR


































Copy PDF link
| Details | ||
|---|---|---|
| Lease Rate | $15.00 SF/YR | |
| Lease Type | MG | |
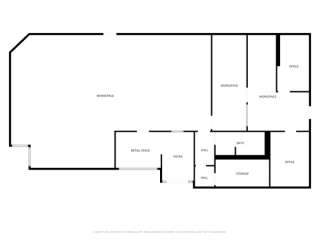
| Size | 2,966 SF +/- | |
| Zoning | C-3 | |
| Year Built | 1981 | |
| Description | ||
|---|---|---|
| This 2,966 SF retail property offers excellent visibility and functionality, featuring a wide-open retail floor plan, two offices, a storage area, and one restroom. The site includes 20 dedicated parking spaces and a prominent pylon sign for strong street presence. Conveniently located on the north side of SW 59th Street near South Pennsylvania Avenue, the property provides quick and easy access to the interstate system and is just minutes from downtown Oklahoma City. This versatile space is ideal for a variety of retail or service-based users seeking a high-traffic, accessible location. | ||
Disclaimer
A real estate broker is not authorized to give legal or tax advice. No representation is made by Johnson Commercial Group or Brick & Beam Realty, its agents or employees, as to the legal effect or tax consequences of the information contained herein or any transaction relating thereto. Although all information furnished regarding property sales or financing options are from sources deemed to be reliable, such information has not been verified and no express representation is made on, or is in any way implied as to the accuracy thereof and is subject to errors, omissions, change of price, or other conditions prior to sale or withdrawal without notice.
