1809 Atchison Dr, Norman, OK 73069
Industrial




















Copy PDF link
| Details | ||
|---|---|---|
| Price Per SF | $10.00 | |
| Lease Type | MG | |
| Size | 2,000 SF | |
| Year Built | 1985 | |
| Zoning | I-1 | |
| Building Size | 11,000 SF | |
| Description | ||
|---|---|---|
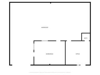
| Located at 1809 Atchison Dr, Suite D in Norman, this 2,000 SF industrial unit offers a functional and efficient layout in a highly accessible location just off Flood Avenue, south of Tecumseh Road. The space features a 50’ x 40’ footprint and includes two private offices, one restroom, and an open warehouse area. The warehouse is equipped with a 10’ x 10’ overhead door and unit heater, making it well suited for light industrial, service, or trade users. Positioned near one of Norman’s most traveled corridors. | ||
Disclaimer
A real estate broker is not authorized to give legal or tax advice. No representation is made by Johnson Commercial Group or Brick & Beam Realty, its agents or employees, as to the legal effect or tax consequences of the information contained herein or any transaction relating thereto. Although all information furnished regarding property sales or financing options are from sources deemed to be reliable, such information has not been verified and no express representation is made on, or is in any way implied as to the accuracy thereof and is subject to errors, omissions, change of price, or other conditions prior to sale or withdrawal without notice.
