1030 N Flood Ave, Norman, OK 73069
Medical, Office, Retail, Flex
$8.00/SF/YR






















Copy PDF link
| Details | ||
|---|---|---|
| Lease Rate | $8.00/SF/YR | |
| NNN Rate | $1.75/SF/YR | |
| Size | 6,412 SF | |
| Zoning | C-2 | |
| Year Built | 1960/2025 | |
| Description | ||
|---|---|---|
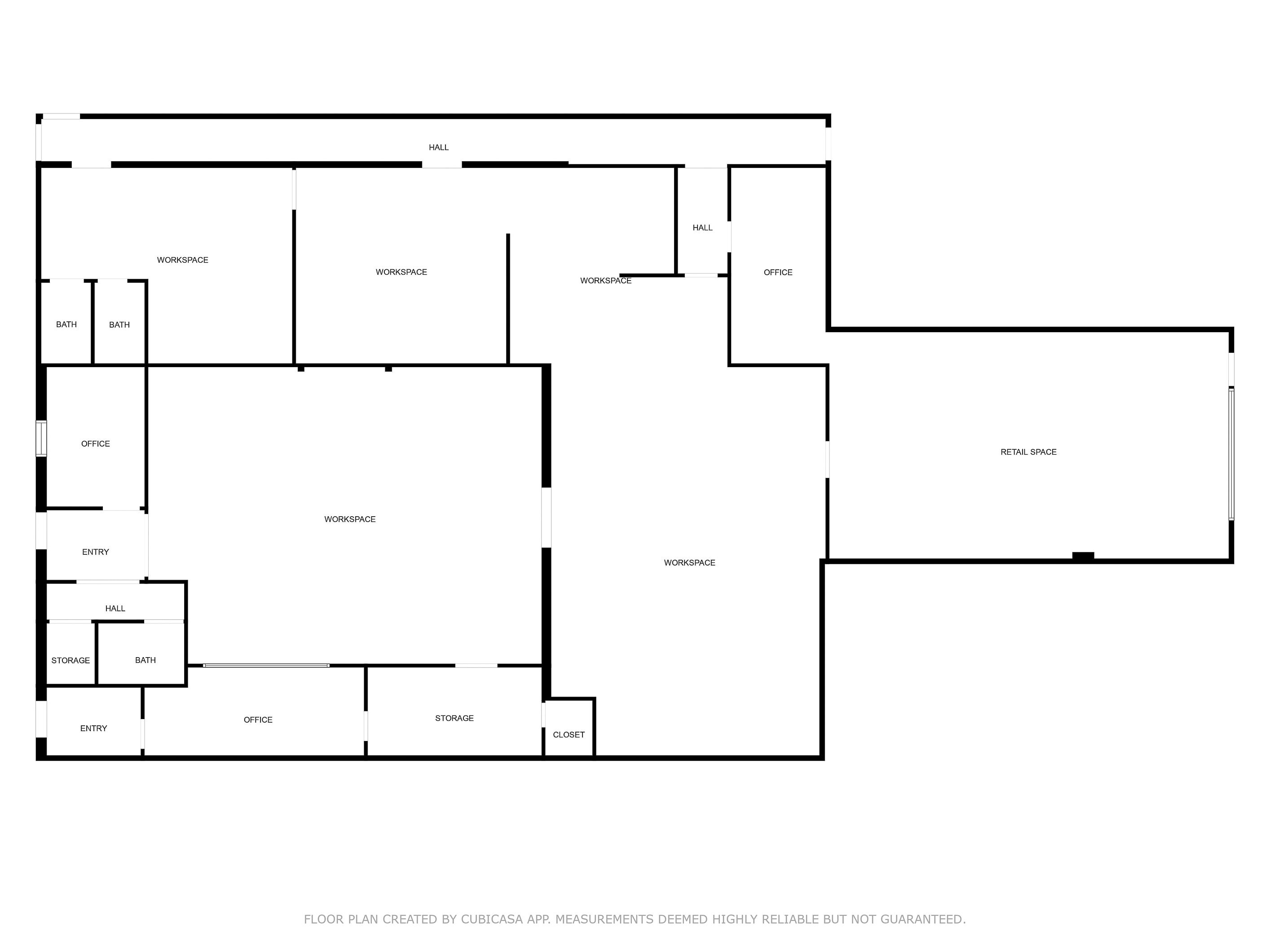
| Located within the revitalized shopping center at 1010–1050 N Flood Ave in Norman, this 6,412 SF suite features a versatile layout with office space, large open work areas, and three restrooms—making it ideal for retail, food service, or service-based businesses. The unit has been whiteboxed and is ready for a tenant to customize and make their own, offering flexibility to suit a variety of needs. Zoned C-2 and just two miles from I-35, the property benefits from strong traffic counts, excellent visibility, and convenient access to more than 4,300 households within a one-mile radius. The shopping center also provides ample parking and prominent storefront signage along one of Norman’s busiest corridors, positioning this space as a prime opportunity for high-traffic users. | ||
Disclaimer
A real estate broker is not authorized to give legal or tax advice. No representation is made by Johnson Commercial Group or Brick & Beam Realty, its agents or employees, as to the legal effect or tax consequences of the information contained herein or any transaction relating thereto. Although all information furnished regarding property sales or financing options are from sources deemed to be reliable, such information has not been verified and no express representation is made on, or is in any way implied as to the accuracy thereof and is subject to errors, omissions, change of price, or other conditions prior to sale or withdrawal without notice.
